House Kit 26
Price: $38280
Description
- 42X58X8 BASIC SHELL
- PORCHES AS SHOWN
- 3 - 3' HOUSE DOORS
- 9 - 3X5 VINYL WINDOWS
- 1 – 3X3 VINYL WINDOW
- TRUSSES AT 2' ON CENTER
- STUDS AT 16" ON CENTER
- HOUSE WRAP
- 245' OF INTERIOR FRAMING
- SOFFIT AND FASCIA OVERHANG ON ROOF
- 40 YR WARRANTY 29 GAUGE METAL - 20 COLORS AVAILABLE
- UPGRADE TO OSB & PREMIUM BOARD & BATT METAL SIDING AVAILABLE
- WE DELIVER UP TO 5 HOURS FROM POCAHONTAS, ARKANSAS.
- PLUS TAX & DELIVERY
- ADDITIONAL FEES AND SURCHARGES MAY APPLY
- PRICES ARE SUBJECT TO CHANGE WITHOUT NOTICE.

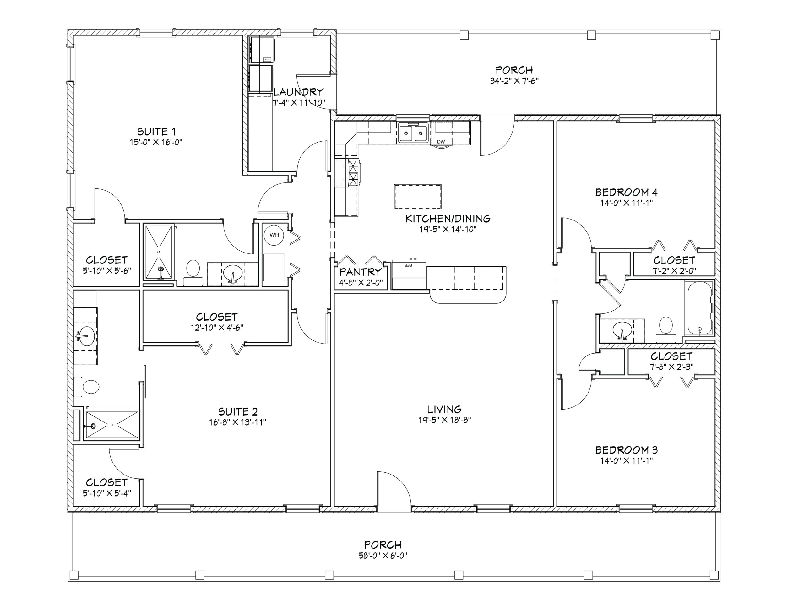
Kits Details
- Garage: No
- Baths: 3
- Bedrooms: 4
- Total Living Space: 2181 sq.ft.
- Price: 38280
- Length: 58 ft.
- Depth: 42 ft.
- Height: 8 ft.
- Framing: 2X4
- Roof Pitch: 6/12
- Total Square Footage: 2784 sq.ft.



