House Kit 22
Price: $41400
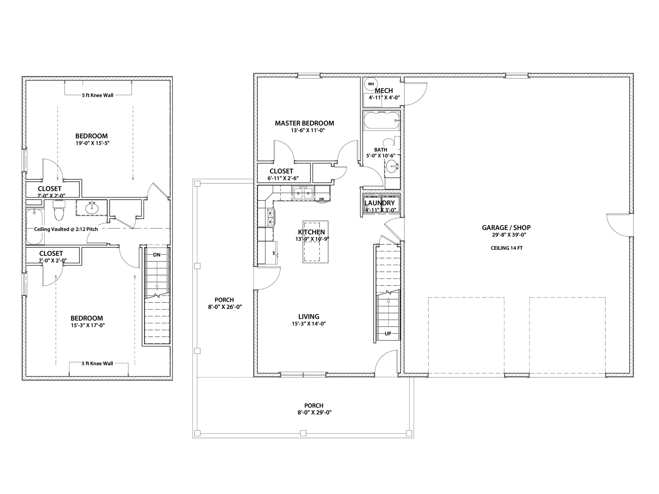
Description
- 40X50X14 BASIC SHELL
- PORCHES AS SHOWN
- 3 - 3' HOUSE DOORS
- 2 - 10X10 GARAGE DOOR OPENINGS (DOORS NOT INCLUDED)
- 6 - 3X5 VINYL WINDOWS
- TRUSSES AT 2' ON CENTER ON HOUSE SECTION
- TRUSSES AT 4’ ON CENTER ON SHOP SECTION
- STUDS AT 16" ON CENTER ON HOUSE SECTION
- STUDS AT 24” ON CENTER ON SHOP SECTION
- HOUSE WRAP • 198' OF INTERIOR FRAMING
- SOFFIT AND FASCIA OVERHANG ON ROOF
- 40 YR WARRANTY 29 GAUGE METAL - 20 COLORS AVAILABLE
- UPGRADE TO OSB & PREMIUM BOARD & BATT METAL SIDING AVAILABLE
- WE DELIVER UP TO 5 HOURS FROM POCAHONTAS, ARKANSAS.
- PLUS TAX & DELIVERY
- ADDITIONAL FEES AND SURCHARGES MAY APPLY.
- PRICES ARE SUBJECT TO CHANGE WITHOUT NOTICE.

Kits Details
- Garage: Yes
- Baths: 2
- Bedrooms: 3
- Total Living Space: 1536 sq.ft.
- Price: 41400
- Length: 50 ft.
- Depth: 40
- Height: 16 ft.
- Framing: 2X6
- Roof Pitch: 4/12
- Total Square Footage: 3184 sq.ft.


